东方楼书,看透房地产和买房卖房众生相!《和老人一起改善,可以这么买房》是一篇关于老人的文章。东方小楼引用该文章仅仅为了更好的传播房地产相关知识,让大家在房地产买卖中有更清晰的目的和执行策略!不代表小楼认同其观点,本着从不同侧面看问题的态度,我们会引用很多大咖的观点!

最近一段时间比较忙,睡眠也少,果然还是出问题了。
◐◐◐◐●☛█▼▲◐◐◐◐●☛█▼▲HtTp://wWW.dfjb.net东方金报网●●●●●●●●●●●●●●●●●●●●●●●●●●这几天感觉嘴唇比较干,今早起来已经发红变肿了,还火辣辣的疼,和尼玛《东成西就》里欧阳锋一样。


另外,我这几天嗓子开始痒,痰里还有血丝,和当初阳过之后非常相似。
种种原因,我搜了一下,很可能是抵抗力降低导致的病毒感染,正好我最近半个月都又忙又累,睡眠不足,所以身体是革命的本钱啊。
◐◐◐◐●☛█▼▲◐◐◐◐●☛█▼▲HtTp://wWW.dfjb.net东方金报网●●●●●●●●●●●●●●●●●●●●●●●●●●最近咨询买房的朋友挺多,而且很有意思的是,不少人都是一下咨询2套,想和父母一起改善了。
http://www.dfjb.net●☛█▼▲◐●☛█▼▲◐◐◐◐●☛█▼▲◐东方金报网●☛█▼▲东方金报网这么做肯定是对的,老人年纪越来越大,家里小孩又要人照顾,住得远的话会非常麻烦,难道让你妈天天坐公交往返你家吗?趁着现在房价还没涨赶紧改善一下。
我记得有个粉丝,预算也比较有限,想让我在南京全范围内推荐个500万左右的5房,新旧都可以,因为他需要带着老人住,自己怎么找都找不到合适房源。
◐◐◐◐●☛█▼▲东方金报网███████东方金报网HTtp://www.dfjb.net▼▲▼▲▼▲▼▲▼●●●●●●●▼▲▼▲▼▲我也好好思考了这个问题,南京新房里是没有这种5房的,而二手房里唯一能买到的就是没电梯顶跃老破大,这种房子是真不能买,哪怕你7折买入,今后可能6折都卖不掉,更何况还没有电梯,老人根本爬不动。
后来,我想到一个很好的办法,就是让他去买新房小户型,一次买2套,那种同一层楼相互靠着的2套。
位置偏一些的2套89平不买包,加上一些折扣,总价也能控制在500万左右。
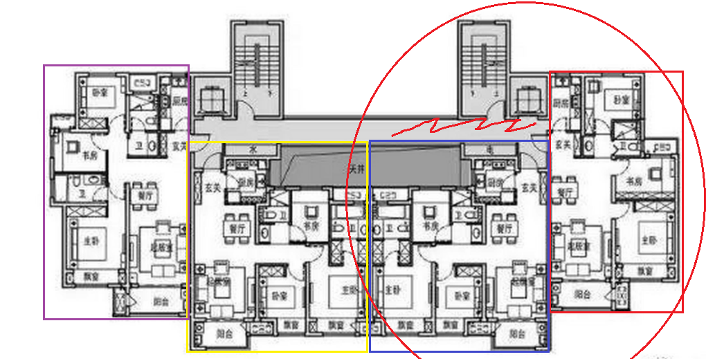
示意图,可以把右边2套全拿下,一大块公共区域都是你家的
◐◐◐◐●☛█▼▲东方金报网http://www.dfjb.net▼▲▼▲▼▲▼▲▼●●●●●●●▼▲▼▲▼▲一来,老人的生活方式和年轻人有冲突,真的住到一个屋檐下,后面是数不清的麻烦和各种吵不完的矛盾;
二来,以刚需的购买力,往往只能买到偏远版块大户型,或者主城老破大,这些房子以后必然不会升值,甚至卖都卖不出去,对本就不富裕的家庭来说,是很吃亏的;
三来,现在房子2梯4户,得房率也不高,你要买个连廊中间户就很没隐私,而你若买个边户则很担心邻居素质,反正住的也不会很舒服。
◐◐◐◐●☛█▼▲东方金报网███████http://www.dfjb.net▼▲▼▲▼▲▼▲▼●●●●●●●▼▲▼▲▼▲反过来,如果你能买靠一起的一层2户,那么和老人是可以保持一定距离的,甚至冰箱都可以各家放一个,吃饭想一起就一起,想分开就分开,住的会舒服很多,矛盾也少很多。
二来,即便是偏远版块,2套小户型也很好出手,资产流动性没问题。
三来,即便是2梯4户(1梯2户),你买了2套后,电梯出来整个公共区域都是你家的,随便你怎么打柜子都行,实际得房率提高了很多。哪怕其中一套是中间户也不是很担心,毕竟这半边连廊全是你家的。
这种事情在以前是不可能的,因为以前要摇号,能买到一套就不错了,就别想到2套靠一起。
但在今天是完全可行的,因为开发商求着你买,你随时去都可以买一层。更关键的是,你可以不买包,然后把房子改造下。
◐◐◐◐●☛█▼▲东方金报网███████东方金报网HTtp://www.dfjb.net▼▲▼▲▼▲▼▲▼●●●●●●●▼▲▼▲▼▲有些房子是支持2套打通的,这样挺爽;而有些房子不支持打通的,但你可以进行大胆改造,比如你可以把其中1-2个房间给砸了,把客厅扩大,或者主卧扩大,都是非常爽的。
豪宅多是2梯2户,你若是一下买2套,那就牛逼了,这一层都是你家的,得房率直接飙升10%以上,你想想看有多爽?
比如当初中国府,一层2户,一套230,一套290,总价加起来510平,总价3400万,可一点不输给顶楼的420平3800万。。。。
◐◐◐◐●☛█▼▲东方金报网███████东方金报网HTtp://www.dfjb.net▼▲▼▲▼▲▼▲▼●●●●●●●▼▲▼▲▼▲现在是可以的,大家若真的有那种带着老人改善2套的需求,完全可以考虑这种方案。
买2个140靠一起,8房4卫,你可以有无数种改造方案,改个超大卧室带衣帽间,或者改个超大客厅都很容易。
当然了,事情也没这么简单,不是说无脑买2套就一定好。
●☛█▼▲东方金报网HtTp://Www.dfjb.net◐◐◐◐●☛█▼▲◐◐◐◐●☛█▼▲前年湾四有个大哥,神通广大,在开盘的时候就拿到了同一层的2套250户型,前年挂牌5000万想出掉。
首要原因是南京顶端购买力不足,但还有个很重要的原因是,即便遇到了实力买家,他也看不上250平的小空间,毕竟说起来500平,实际上很多尺寸还是250的无法改动,比380差多了。

那么土豪更可能选择一套380平加一套250,或者一套380加一套湾三,而不是2套250。
不同条件的人有不同的需求,但大部分人这么玩肯定没错,除非你家老头太讨厌了,你就想躲得远远的。
◐◐◐◐●☛█▼▲◐◐◐◐●☛█▼▲HtTp://wWW.dfjb.net东方金报网●●●●●●●●●●●●●●●●●●●●●●●●●●这算是给大家一个思路,反正跟老人住嘛,尽量离的近一点,但一定要分开。
以上就是关于《和老人一起改善,可以这么买房》的全部内容,如果《和老人一起改善,可以这么买房》能够帮助到您,不胜感激!举起您高贵的手将我们收藏吧!东方楼市小楼编辑将不胜感激!